
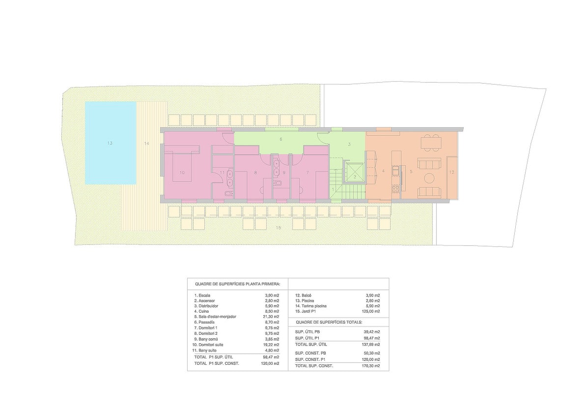
Vivienda bioclimática en Sant Cugat
La utilización de materiales ecológicos (hormigón celular, pinturas naturales y madera), así como el aprovechamiento de los recursos naturales como la orientación, el viento, etc. son las características principales de este proyecto. 2019

Cuéntame tu sueño
Si quieres ponerte en contacto conmigo, envíame un mensaje o usa el siguiente formulario:
“Los problemas que hay en el mundo no se pueden solucionar con la misma forma de pensar que los ha producido”
Albert Einstein











