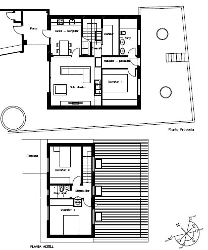
Reforma bio de vivienda en Vidreres

Utilización de la madera como principal material estructural, el aislamiento continuo por el exterior (SATE), la calefacción mediante suelo radiante y la instalación de un sistema de aerotermia, han conseguido que esta vivienda sea de un alto confort y una alta eficiencia energética. 2019-En construcción.

Cuéntame tu sueño

Si quieres ponerte en contacto conmigo, envíame un mensaje o usa el siguiente formulario:

    “Los problemas que hay en el mundo no se pueden solucionar con la misma forma de pensar que los ha producido”

    Albert Einstein